Jednotka je vybavena lůžkovým systémem FLEX&SMART, který obsahuje základní dvoulůžko o velikosti 180×200 cm, které je možné jednoduchým úkonem rozdělit na dvě samostatná lůžka 90×200 cm.
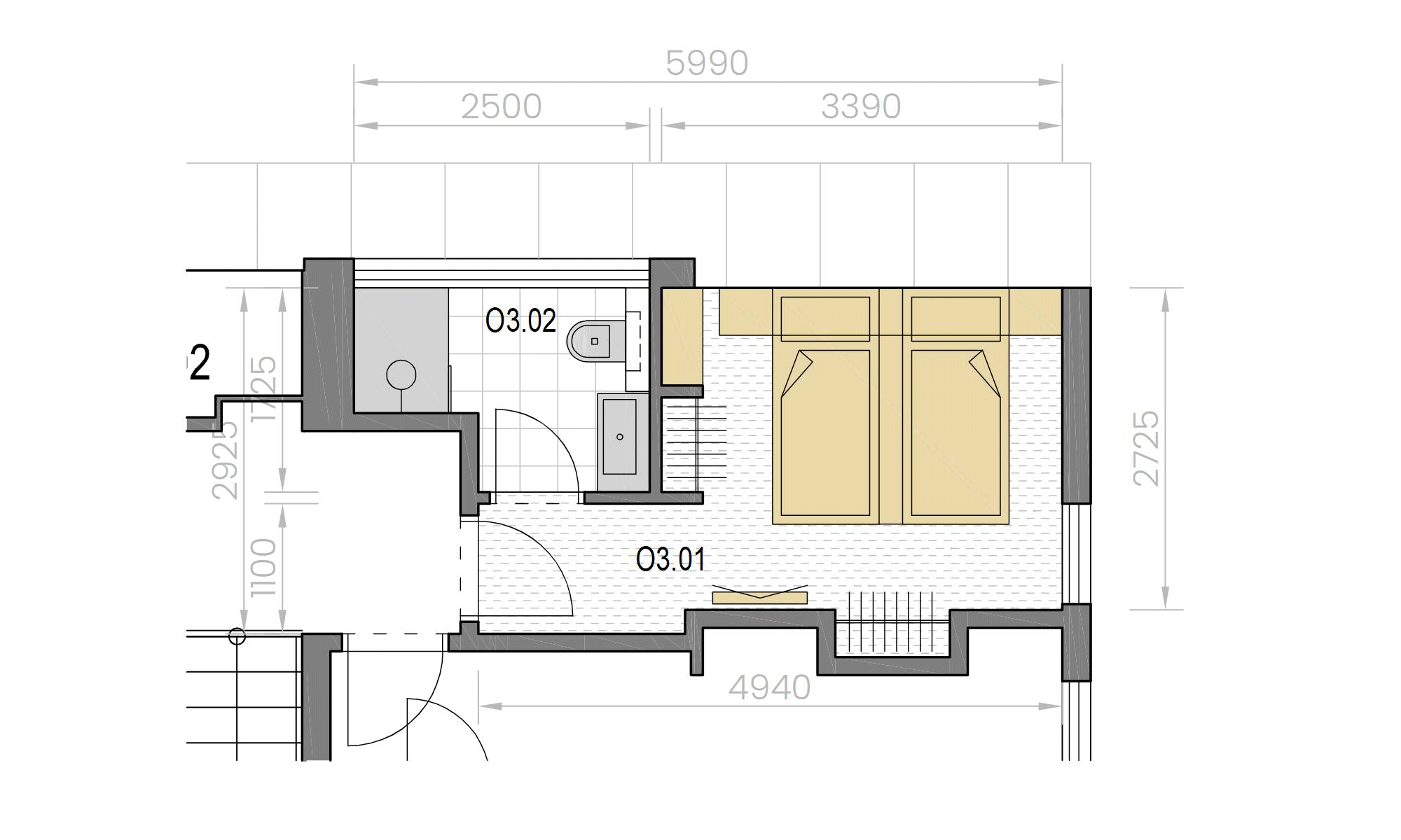
Jednotka je standardně vybavená lůžkovým systémem FLEX&SMART, vlastní koupelnou s walk-in sprchou, WC a umyvadlem, vestavnou skříní a dalšími odkládacími prostory pro věci ubytovnaých hostů, stolkem s židlí, závěsnou TV. Na podlaze je kvalitní zátěžový koberec, který zajišťuje maximální pohodlí a domáckou atmosféru při pobytu. Jednotka je napojena na topení z centrální kotelny v domě. K zajištění bezpečnosti hostů je v jednotce instalováno kouřové čidlo.
Jednotka nedisponuje možností využití kuchyňky.

Jednotka je nabízena formou prodeje podílu na společnosti HB HOTEL s.r.o. s přesně definovaným vlastnictvím jednotky připadající na daný podíl. Možnost převodu do osobního vlasntictví. Vlastnictví jednotky je zajištěno zástavní smlouvu ve prospěch kupujícího a smlouvou o zákazu zcizení a zatížení.
Prodejní cena zahrnuje příslušný podíl na společnosti HB HOTEL s.r.o. odpovídající vlastnictví dokončené jednotky bez interierového vybavení. Cena za vybavení jednotky dle hotelového standardu je 100 000 Kč a je splatná společně s cenou za jednotku. V ceně je navíc zahrnut počáteční kredit 50,000 Kč na využití hotelových služeb, což odpovídá cca 25-30 běžných nocí za rok.
Katalogový list jednotky ke stažení


