Jednotka je vybavena lůžkovým systémem FLEX&SMART, který obsahuje základní dvoulůžko o velikosti 180×200 cm, které je možné jednoduchým úkonem rozdělit na dvě samostatná lůžka 90×200 cm. Dále je možno rozložit jednu samostatnou výklopnou přistýlku o velikosti 80×195 cm.
Jednotka je standardně vybavená lůžkovým systémem FLEX&SMART, vlastní koupelnou s walk-in sprchou, WC a umyvadlem, vestavnou skříní a dalšími odkládacími prostory pro věci ubytovnaých hostů, stolkem s židlí, závěsnou TV. Na podlaze je kvalitní zátěžový koberec, který zajišťuje maximální pohodlí a domáckou atmosféru při pobytu. Jednotka je napojena na topení z centrální kotelny v domě. K zajištění bezpečnosti hostů je v jednotce instalováno kouřové čidlo.
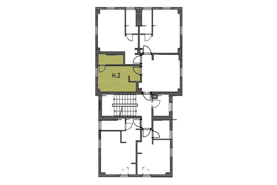
Daná jednotka těsně přiléhá ke společenské místnosti S.2 o podlahové ploše 17,37 m2. K dané jednotce náleží právo užívat společenskou místnost S.1 společně s uživateli jednotek F.2 a G.2. Společenská místnost je vybavena plnohodnotnou kuchyní, TV a sezením pro 12 osob. Celou sekci s jednotkami F.2, G.2 a H.2 a společenskou místností S.2 je možno uzavřít hlavními vstupními dveřmi a využívat tak celou sekci jako soukromou.

Jednotka je nabízena formou prodeje podílu na společnosti HB HOTEL s.r.o. s přesně definovaným vlastnictvím jednotky připadající na daný podíl. Možnost převodu do osobního vlasntictví. Jednotka H.2 je nabízena k prodeji pouze společně s jednotkami F.2 a G.2, nebo jednotlivě až po té, co budou závazní zájemci o všechny tři jednotky.
Prodejní cena zahrnuje příslušný podíl na společnosti HB HOTEL s.r.o. odpovídající vlastnictví dokončené jednotky bez interierového vybavení. Cena za vybavení jednotky dle hotelového standardu je 250 000 Kč a je splatná společně s cenou za jednotku. V ceně je navíc zahrnut počáteční kredit 50,000 Kč na využití hotelových služeb, což odpovídá cca 25-30 běžných nocí za rok.
Katalogový list jednotky ke stažení


